Falusi környezetben

Projekt áttekintése

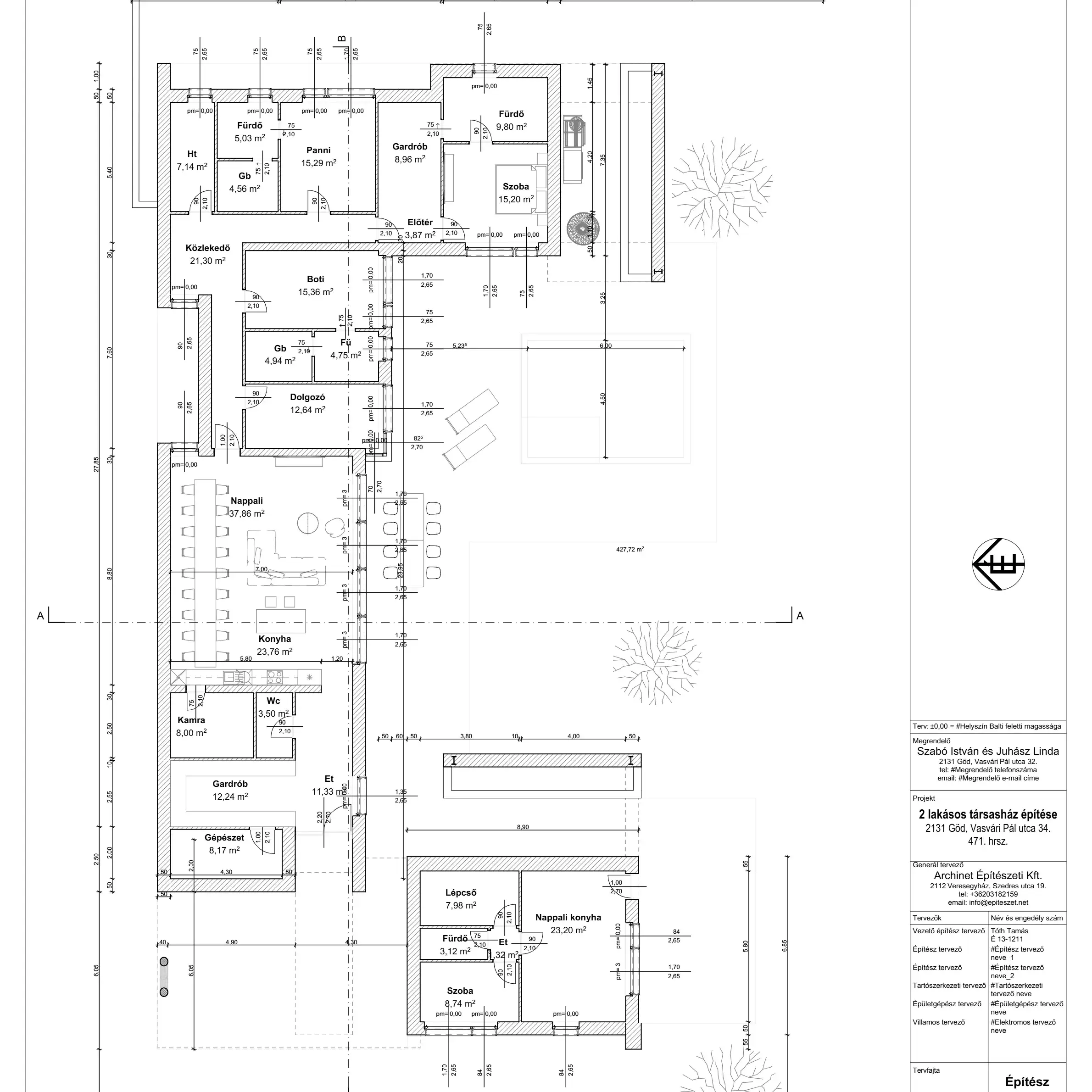
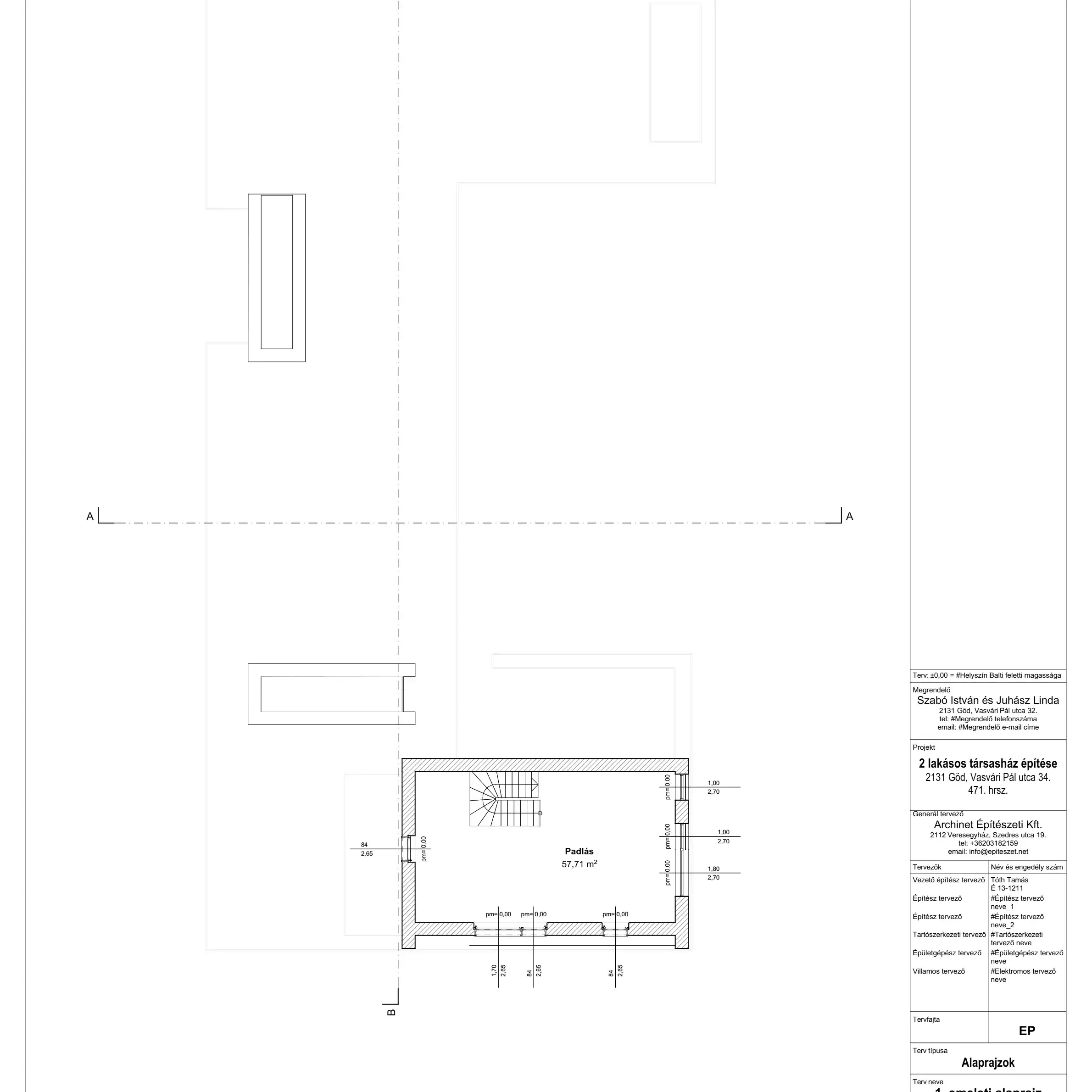
Ez a projekt egy fiatal pár számára épülő új családi ház tervezését és kivitelezését foglalja magában. A telek egy falusias környéken található, ahol a hagyományos és a modern házak keveréke található, a projekt célja pedig egy modern és fenntartható otthon létrehozása, amely egyszerre funkcionális és szép.

Részletek

Hozzájárulásom kulcsfontosságú volt a projekt átfogó víziójának és tervének kialakításában. Felügyeltem az építészet, az építési adminisztráció, a berendezés és a stílus minden aspektusát.

Műszaki adatok

Alapterület

150 m2

Dátum

2025

Projekt státusz

Építés alatt

Használt eszközök

Archicad, Photoshop

A vázlataim

Eredmények

A projekt nagy siker volt. Időre elkészült, és az ügyfél nagyon elégedett volt a végeredménnyel. A terv végrehajtása hatékony volt, és az így létrejött tér felülmúlta a várakozásokat. A csapat a tervezett költségvetésen belül befejezte az építkezést..

Tamás Tóth

2120 Dunakeszi, Fóti út 61. | (20) 318-2159 | info@epiteszet.net

© Tamás Tóth, 2025